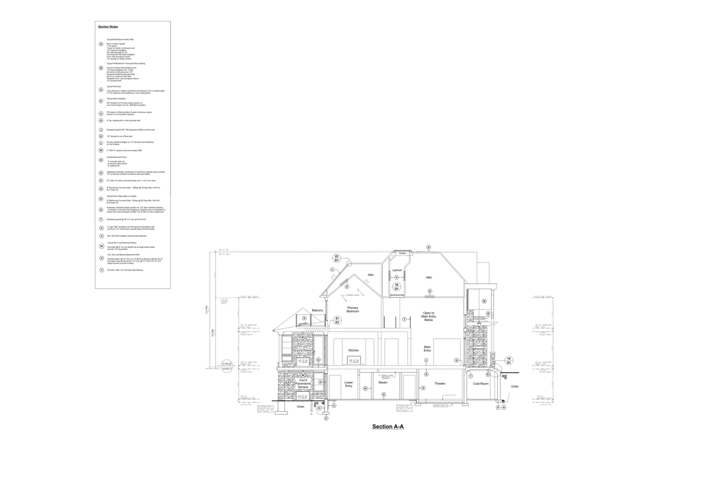
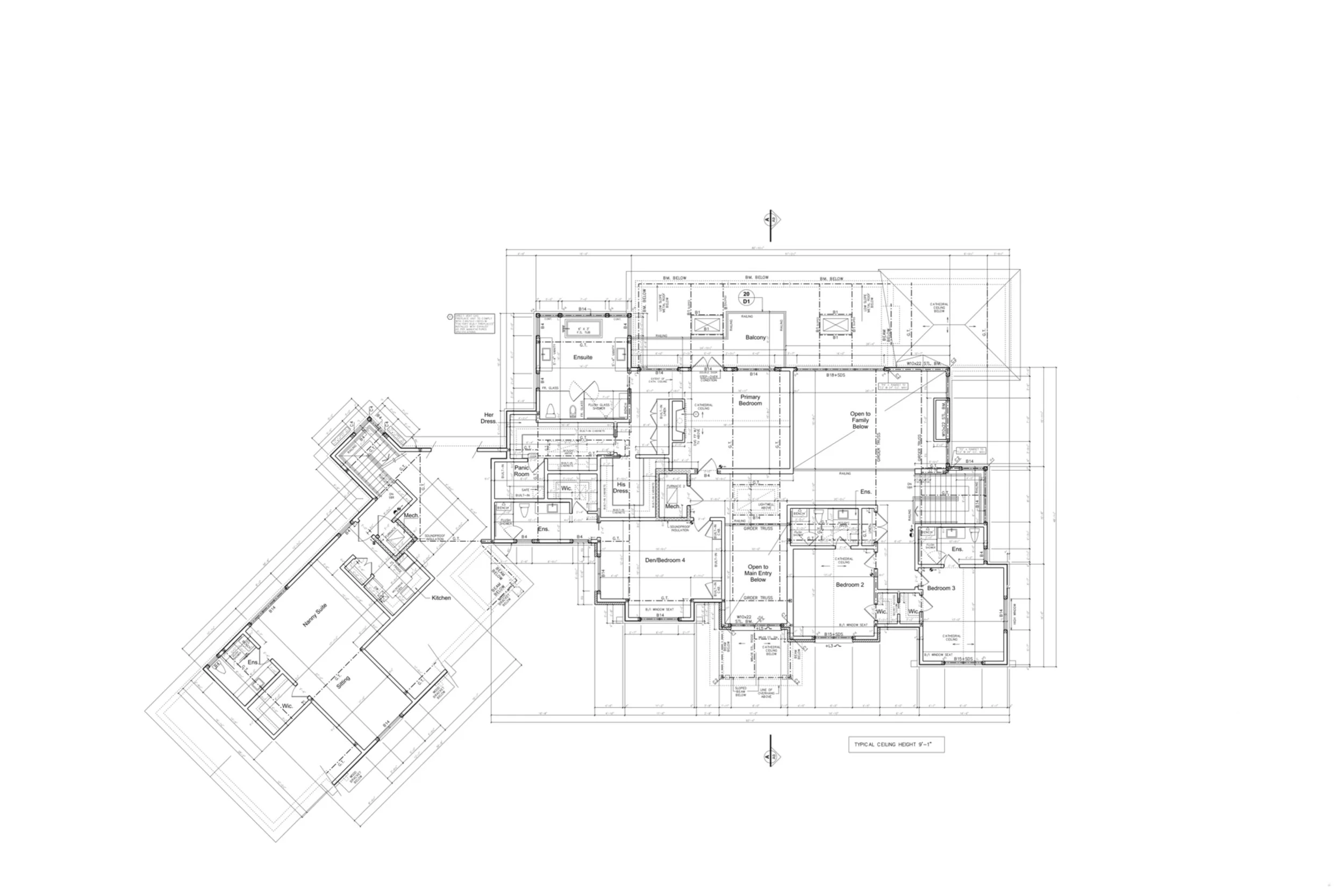
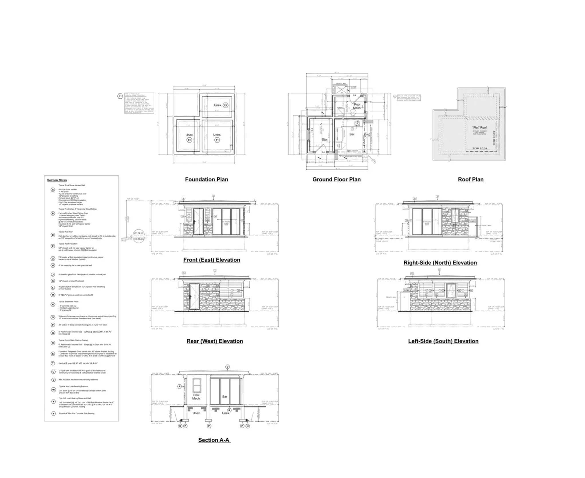
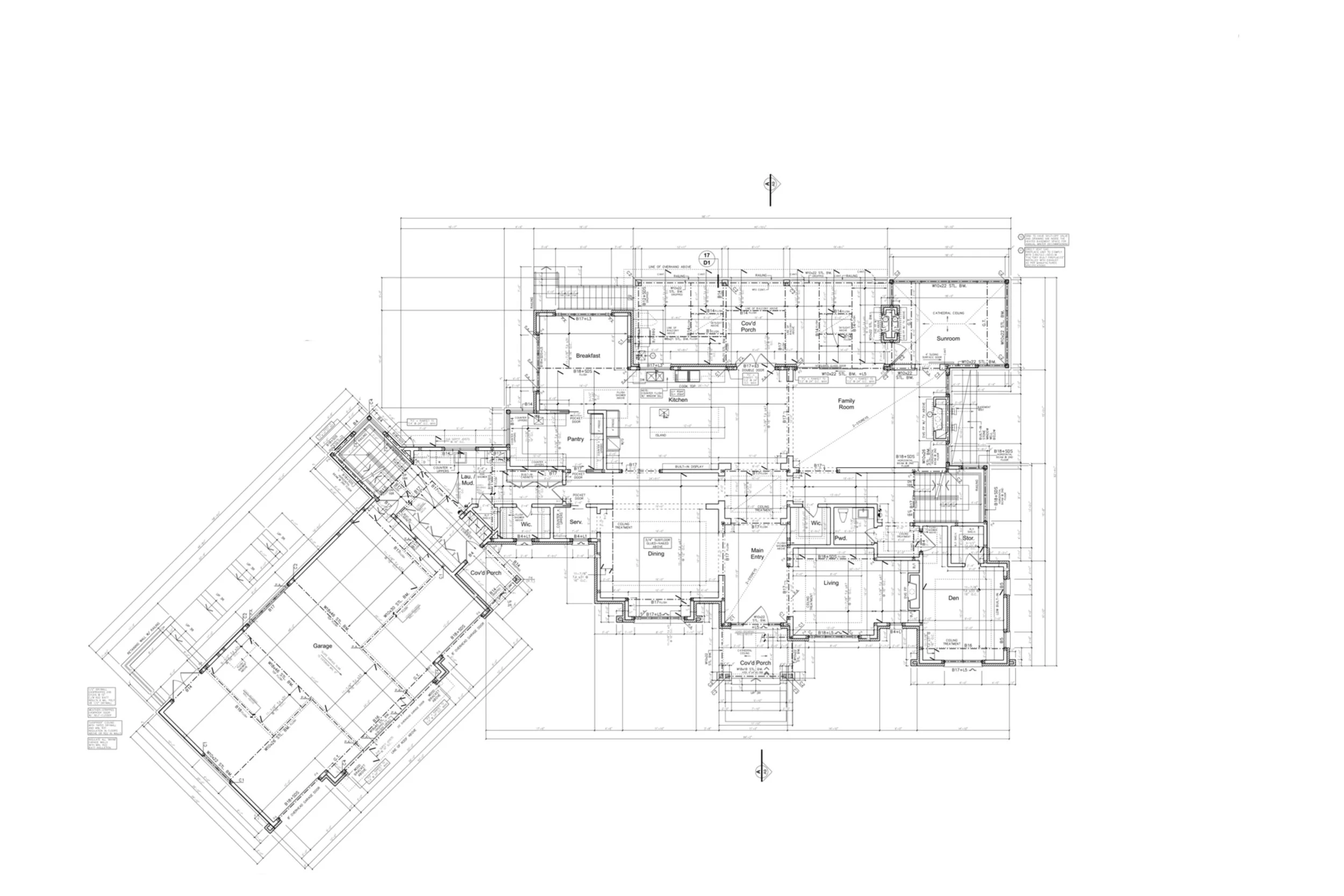
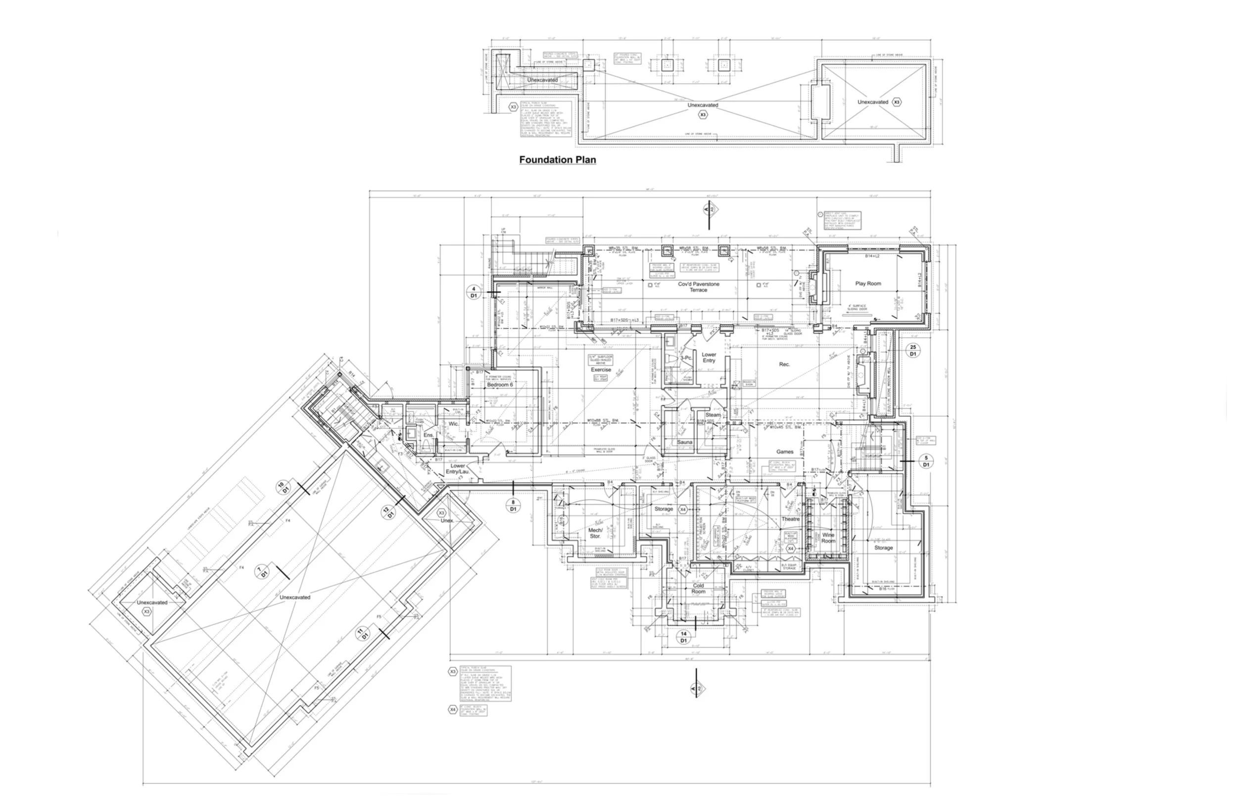
Drawings shown in this page are a selection of design development and technical drawings productions that I have been a part of over the years. I have created these drawings as a part of the production and design team at David Small Designs.
Drawings shown in this page are a selection of design development and technical drawings productions that I have been a part of over the years. I have created these drawings as a part of the production and design team at David Small Designs.