Roxborough

David Small Designs

Location : Toronto, Ontario, Canada

Under Construction

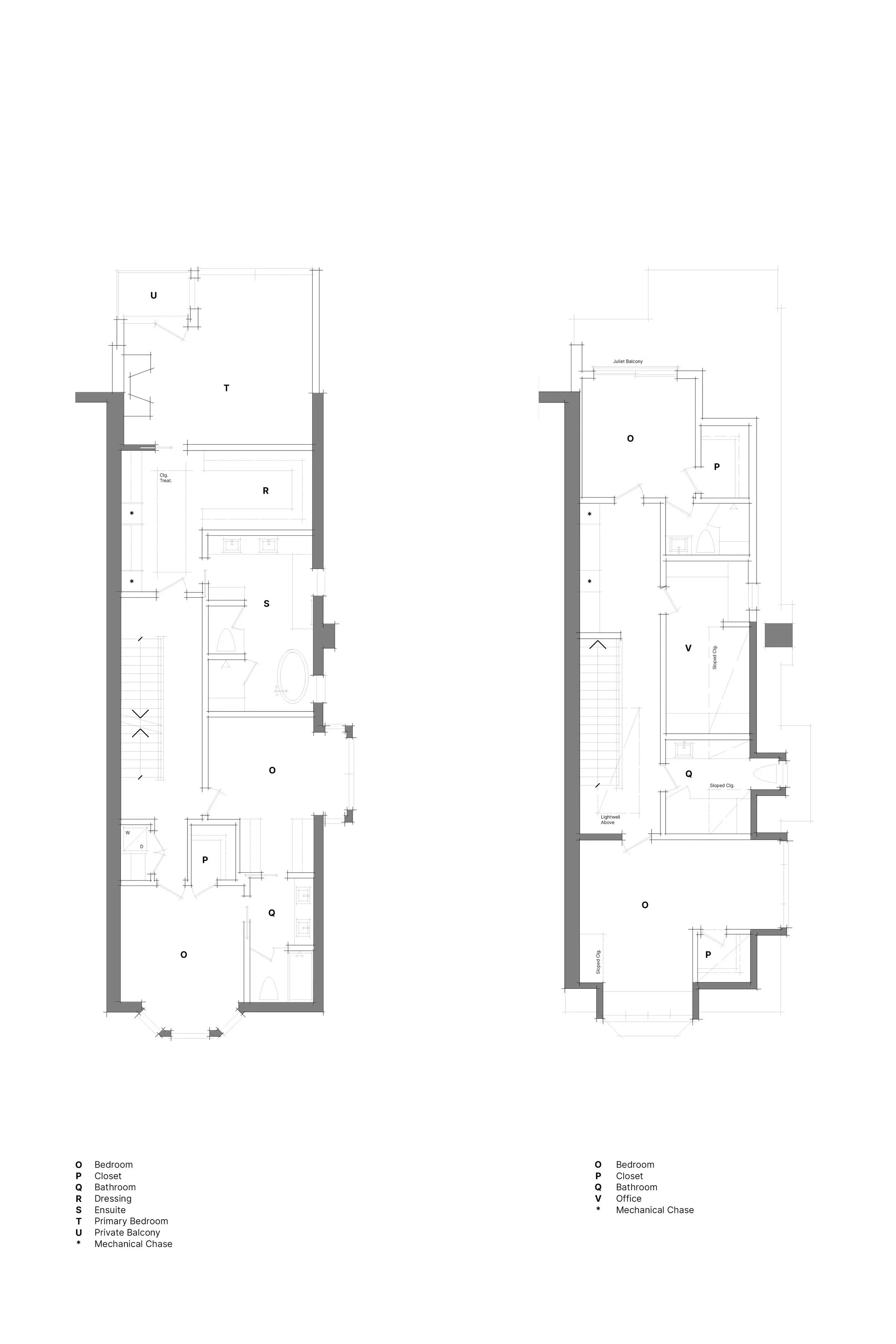
This project is a renovation of a heritage-controlled building in Toronto, shaped by a shared wall, existing construction, and regulatory constraints. The front of the building is part of a larger collective condition, requiring careful and minimal intervention.

To respect the heritage context, additions at the front are restrained, while more contemporary approach are concentrated at the rear. This approach allows the project to balance zoning requirements, construction realities, and the program requirements without compromising the character of the existing structure.

Interior spaces become the primary site of transformation, connecting the program and design inspiration with the realities of the inherited architecture. I was involved as an architectural designer, contributing mainly to the design and design development process. The project is currently under construction.