Seven Road

David Small Designs

Location : Niagara Falls, Ontario, Canada

Under Construction

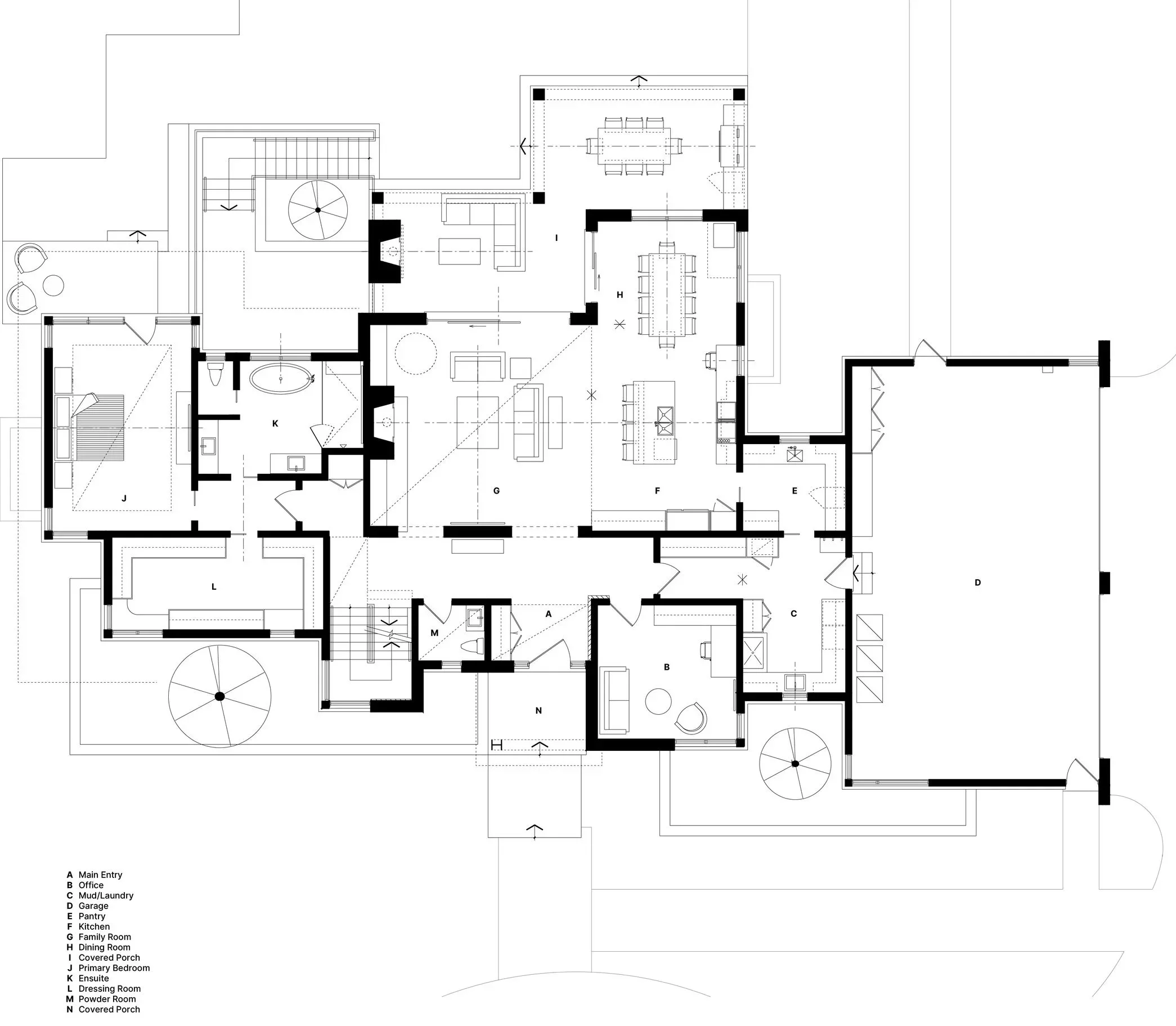
Set within a working vineyard, this residence is shaped by the rhythms of land, labor, and seasonal change. Designed for the vineyard owners, the house responds to its agricultural context rather than retreating from it, allowing moments of openness and privacy to coexist. A low, horizontal massing strategy anchors the building to the landscape, helping it blend into the surrounding rows of vines and expansive horizon.

The design is guided by orientation and spatial sequencing. Living spaces are directed toward long vineyard views, while the landscape is drawn close to the house on multiple sides. Extensive glazing frames seasons and natural light, while carefully layered spaces create separation from shared working areas, reinforcing the house as a place of quiet inhabitation within a larger working environment.

The project evolved through a second design iteration, where client feedback was translated into refined spatial organization and adjusted massing. This process preserved the clarity of the original concept while allowing the architecture to respond more precisely to daily use, inhabitation, and the realities of the site.